January 17, 2025
Bespoke Decorative Window for South Hampstead Synagogue
Written by Charles Lowe
January 17, 2025
Written by Charles Lowe
When the architect approached us with an ambitious concept for a bespoke decorative window at South Hampstead Synagogue, our team knew this project would require a careful balance between aesthetic impact and structural feasibility. We installed a prototype to test the design’s unique overlapping glass elements, ensuring they would form a subtle star of David motif, celebrating the synagogue’s Jewish faith within a modern glazing concept. After refining the design and engineering details, we were contracted again to complete the full installation.

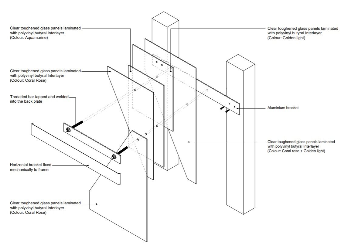
The architect envisioned a bespoke decorative window with multiple shapes and colours of glass, arranged to create a modern take on traditional stained-glass. Each individual panel needed to both highlight the Star of David geometry and allow natural light to filter through in a layered pattern of colour.

From an architectural standpoint, the biggest challenge lay in creating a secure, streamlined hanging system. Rather than relying on a conventional framing approach, we designed a back plate, affixed to the existing wall, equipped with welded rods. Each glass panel has precisely cut holes that align with these rods, allowing the pieces to slot into place. With the glass panels in positioned, a custom front plate is mounted over the rods, locking everything in securely.

The reason we fabricated and installed a prototype window was that there was such intricate geometry and overlapping colours. This early phase helped us confirm the rod alignment, hole spacing, and colour layering. With the proof of concept established, we then proceeded with the final, fully realised bespoke decorative window. The updated design perfected the Star of David motif and natural lighting goals, while ensuring long-term durability.

Now finished, this beautiful window provides a striking focal point for the synagogue, blending tradition with a fresh, contemporary aesthetic. The layered glass elements bring in an abundance of natural light, while the discreet structural support system maintains a clean look on both the interior and exterior. Ultimately, this project underscores how modern glazing techniques can reimagine iconic symbols. It’s our artistic, modern take on a stained-glass window.
Are you exploring similar bespoke decorative window concepts?